


Kodu mõisapargis
Ajalooliste tammede all, Keila jõe kaldal — siin tekib koht, kus pere lugu saab uue peatüki. Linnuse Kodud ühendab vana pargi hinge ja kaasaegse elukvaliteedi viisil, mida mujalt ei leia.
Iga kodu on loodud kestma: läbimõeldud ruumilahendused, tipptasemel materjalid ja tehnosüsteemid, mis hoiavad igapäevaelu mugavana aastakümneteks.
Uue elaniku kogemus
"Linnuse Kodud võlus meid oma asukohaga. See on täpselt see harmoonia, mida otsisime - nautida loodust ja rahu, elades samal ajal linnas."
Vaata, miks valisid uued elanikud oma koduks just Linnuse Kodud Keila mõisapargis.
Majade korruseplaanid

1. korruse plaan
Korterid ja ridaelamud

2. korruse plaan
Korterid ja ridaelamud

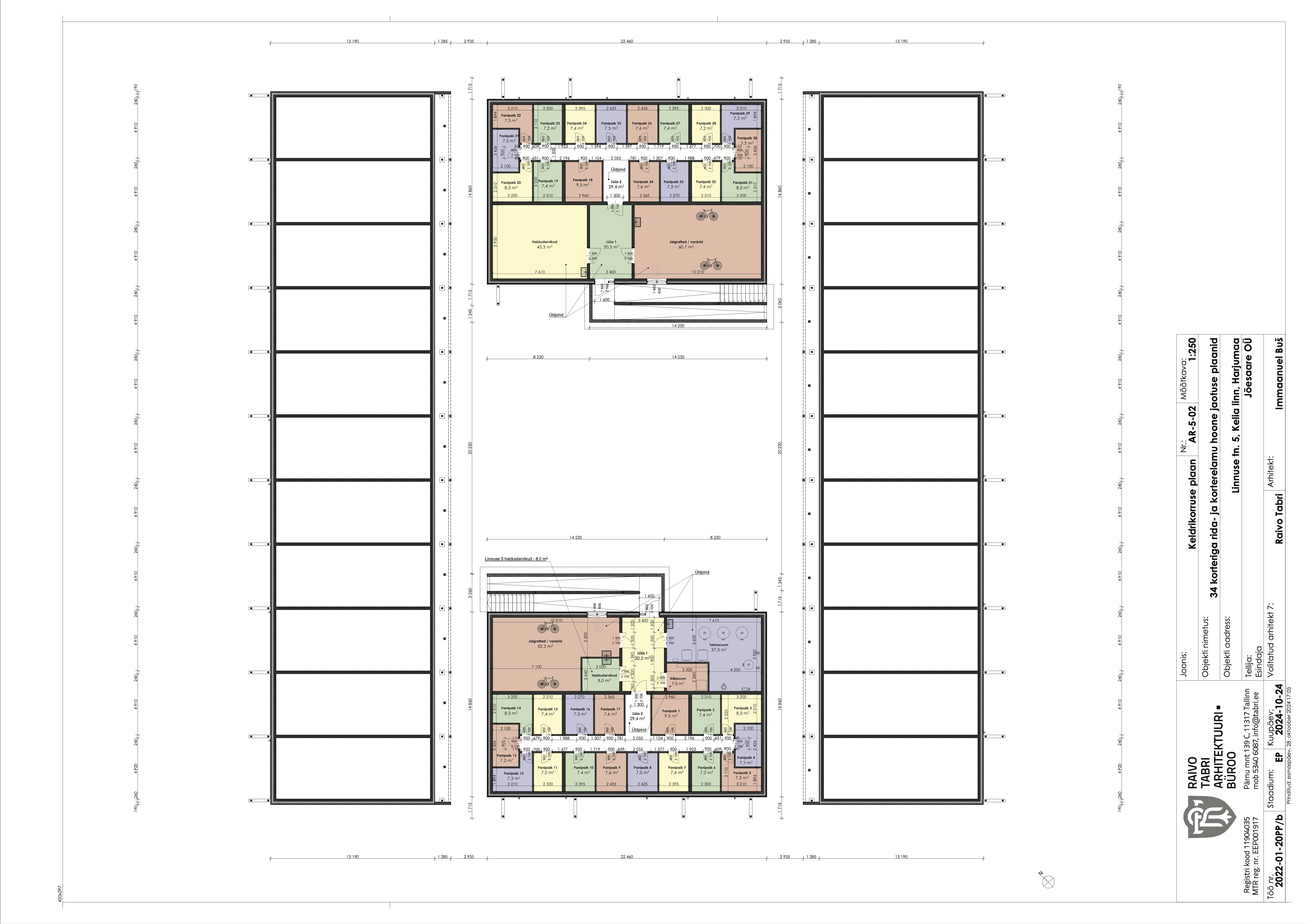
Keldrikorruse plaan
Panipaigad ja tehnoruumid

Asendiplaan
Kogu ala üldine plaan
Galerii
Tutvu Linnuse Kodud ja mõisapargi kaunite vaadete ning rajatistega













Projekti ajajoon
2025
Ehitus käib
Praegu
60% valmis
Kevad 2026
Siseviimistlus
September 2026
Kodud valmis
2025
Ehitus käib
Praegu
60% valmis
Kevad 2026
Siseviimistlus
September 2026
Kodud valmis



